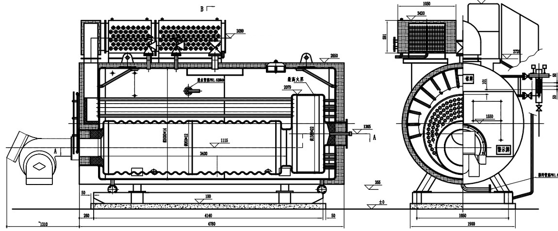
燃气蒸汽锅炉是我集团公司引进德国技术,根据技术和经验设计而成的锅壳式三回程湿背燃油(气)锅炉。锅炉运行自动化,燃料经燃烧器雾化后,形成的火炬充满在全波形炉胆内,并通过炉胆壁传递福射热,此为回程。燃烧产生的高温烟气在回燃室内汇聚,转向进 入*二回程,即螺烟管管束区,经对流热换后,烟气温度驢逐渐降低至前烟箱,并在此转向进入第三回程,即光管管束区,随后烟箱流入烟囱,*后排入大气。
该系列产品具有安*、*效率、节能环保、维护方便,经久耐用、全自动智能控制等特点;均经特检院热能测试**能效测式,各项性能指标 均高于设计要求,已达到燃气冷凝蒸汽锅炉水平





